Property Description
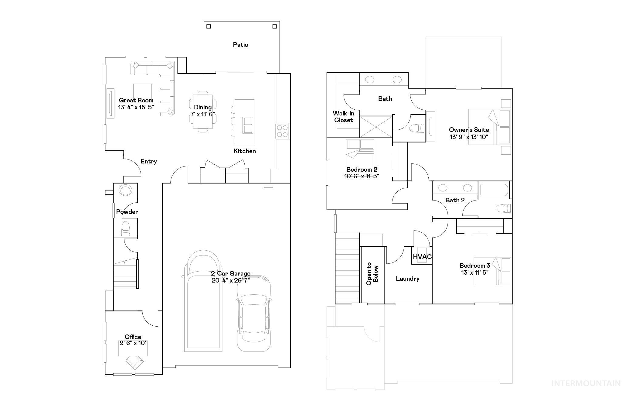
The Duet Series blends luxury with convenience in a beautifully designed two-story townhouse. Featuring 9’ ceilings on the main level, these homes offer an open-concept living room and kitchen with stainless steel appliances, quartz countertops, and a gourmet island—ideal for entertaining. Every home includes window blinds, refrigerator, washer and dryer, and full landscaping. Enjoy the ease of townhome living with the upscale finishes you expect from Lennar. The Eagle Ridge community includes walking paths, Tot lot, Clubhouse, Pool, and Pickleball courts.
Features
- Heating:
- Forced Air
- Cooling:
- Central air
- Garage Capacity:
- 2
Address Map
- Country:
- US
- State:
- ID
- County:
- Ada
- City:
- Eagle
- Zipcode:
- 83616
- Street:
- 1701 N Big Star Ave
- Longitude:
- W117° 32' 33.8''
- Latitude:
- N43° 42' 24.9''
Rooms
- Master Bedroom Level:
- Upper
- Master Bedroom Size:
- 13x13
- Bedroom 2 Level:
- Upper
- Bedroom2 Size:
- 10x11
- Bedroom 3 Level:
- Upper
- Bedroom3 Size:
- 13x11
Schools
- School District:
- West Ada School District
- Elementary School:
- Eagle
- Middle School:
- Star
- High School:
- Eagle
Additional Details
- Status:
- New
- Type:
- Townhouse
- Level:
- Two Story
- Tax Year:
- 2025
- Potential Short Sale:
- No
- Age:
- Under Construction
- Auction:
- No
- Flood Ins Required:
- No
- HUD Owned:
- No
- In Foreclosure:
- No
- Land Size:
- Sm Lot 5999 SF
- Land Lease:
- No
- Home Owner Exempt:
- No
- HOA Frequency:
- Quarterly
- HOA Fees:
- $350
- Inc Kitchen Features:
- Breakfast bar, Dishwasher, Disposal, Microwave, Oven/range freestanding, Pantry, Refrigerator, Washer, Dryer, Island, Countertop-quartz, Gas Range
- Water:
- City service
- Land Use:
- Condo/townhouse
- Sprinkler System:
- Auto,Full,Pressurized Irrigation
Residential For Sale
1701 N Big Star Ave, Eagle, Idaho 83616
3 Bedrooms
2.5 Bathrooms
1,785 SqFt
Visits : 1 in 1 days
$448,900
Listing ID #98983138
Basic Details
- Property Type :
- Residential
- Listing Type :
- For Sale
- Listing ID :
- 98983138
- Price :
- $448,900
- Bedrooms :
- 3
- Bathrooms :
- 2.5
- Apx SqFt :
- 1,785 SqFt
- Year Built :
- 2026
- Lot Area :
- 0.11 SqFt
- Days on Market :
- 1
- Subdivision :
- Eagle Ridge
- Builder Name :
- Lennar
- Update Date :
- 04/22/2026 23:11:37
- Status :
- Active
Agent info
- JoeAnne Santy-Greene
- (208) 947-4609
- (208) 283-6313
- (208) 287-8500
-
Contact Agent
Mortgage Calculator
